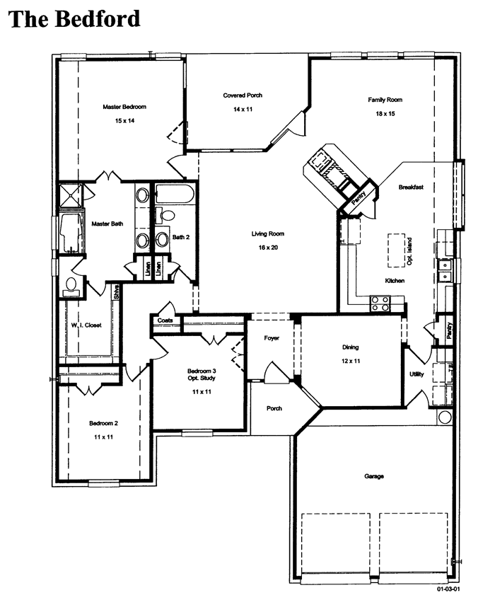
Click Image To Enlarge Or Print